科新发展
中
/
EN
首页
关于科新
核心业务
新闻中心
投资者关系
人才资源
联系我们
集团简介
组织架构
发展历程
提达装饰
恒顺贸易
灏远景科技
集团动态
业务动态
行业资讯
通知公告
企业治理
财务新闻
公司公告
投资者保护
投资者咨询
人才发展
人才培养
人才招聘
首页
关于科新
核心业务
新闻中心
投资者关系
人才资源
联系我们
集团简介
组织架构
发展历程
提达装饰
恒顺贸易
灏远景科技
集团动态
业务动态
行业资讯
通知公告
企业治理
财务新闻
公司公告
投资者保护
投资者咨询
人才发展
人才培养
人才招聘
提达装饰
/
案例展示
/
精装样板篇
关于我们
案例展示
人才招聘
联系我们
精装样板篇
办公空间篇
商业空间篇
酒店会所篇
园林景观篇
娱乐空间篇
医疗康养篇
精装样板篇
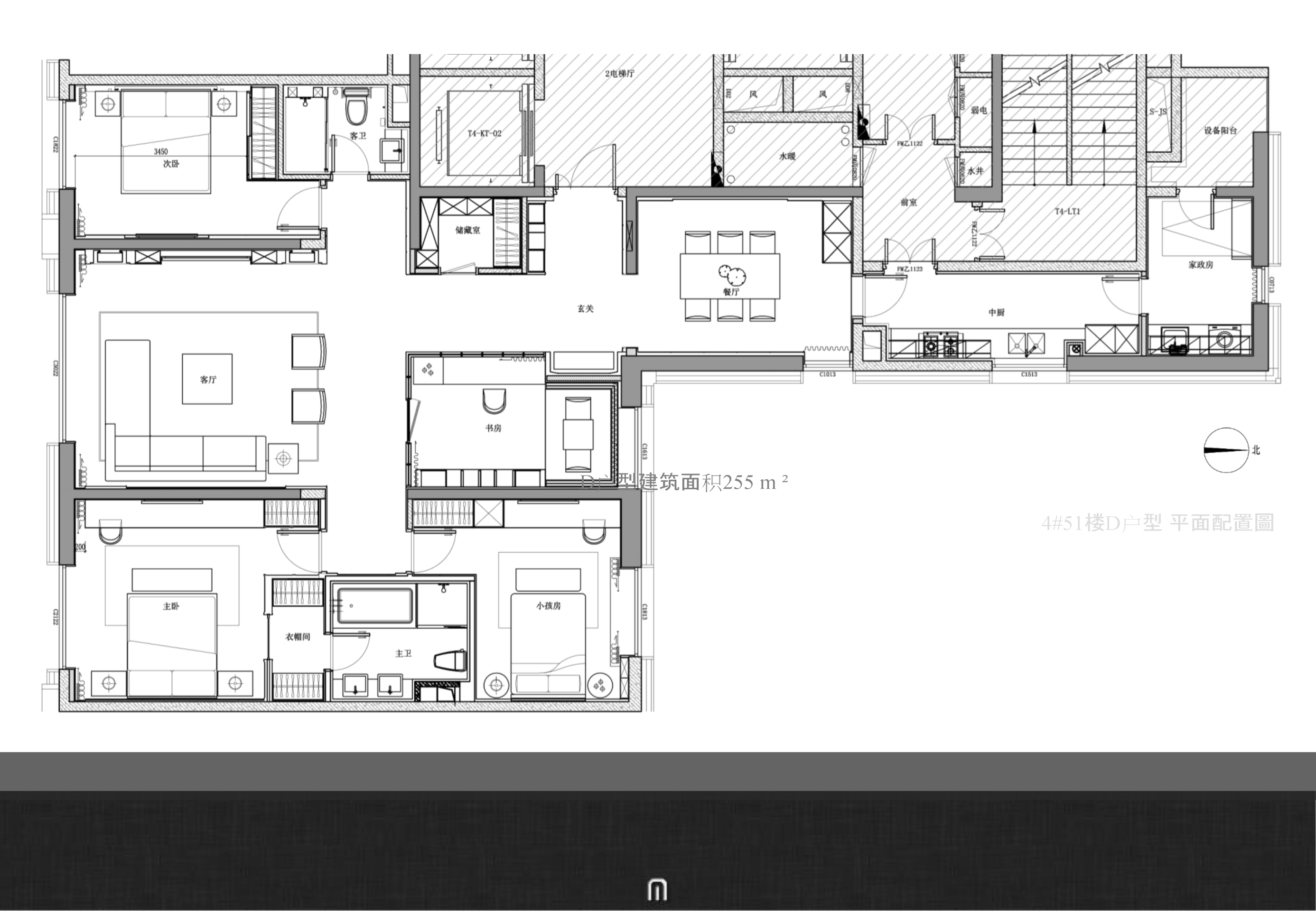
沈阳宝能4#效果图对比图简报